The Black Rock

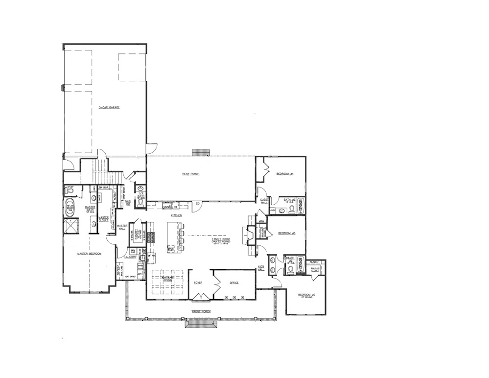
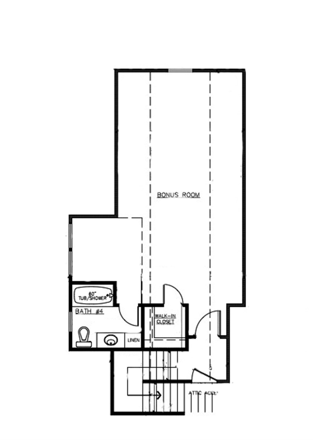
This stunning two-story modern farmhouse plan features 4 bedrooms, 4 bathrooms, and a 3-car garage. The well-utilized 3,140 sq feet of living space has it all! The covered front porch invites you into an open and airy great room with vaulted ceilings and a big fireplace that can be seen from the heart of the home...The Kitchen. The center island has plenty of room for food prep and seating, and a dining area in front of large windows creates a great spot to gather with family and friends. The back of the home features a second covered porch and an optional rear garage door providing rear access to the garage. A walk-through pantry, a laundry room, Jack and Jill bath and a large bonus room with a full bath, and ample closet space are just a few of the comforts that make this home so remarkable!

 

© Copyright 2025. Reeves Custom Homes. All Rights Reserved.
Website & Hosting by BlueTone Media
Sitemap | Blog